Paphos, Cộng Hòa Síp
VỊ TRÍ ĐẮC ĐỊA CỦA DỰ ÁN



TIỆN ÍCH XUNG QUANH
Vị trí cho phép cư dân tiếp cận mọi tiện ích chỉ trong vài phút di chuyển, nhưng vẫn giữ được cảm giác sống giữa thiên nhiên.
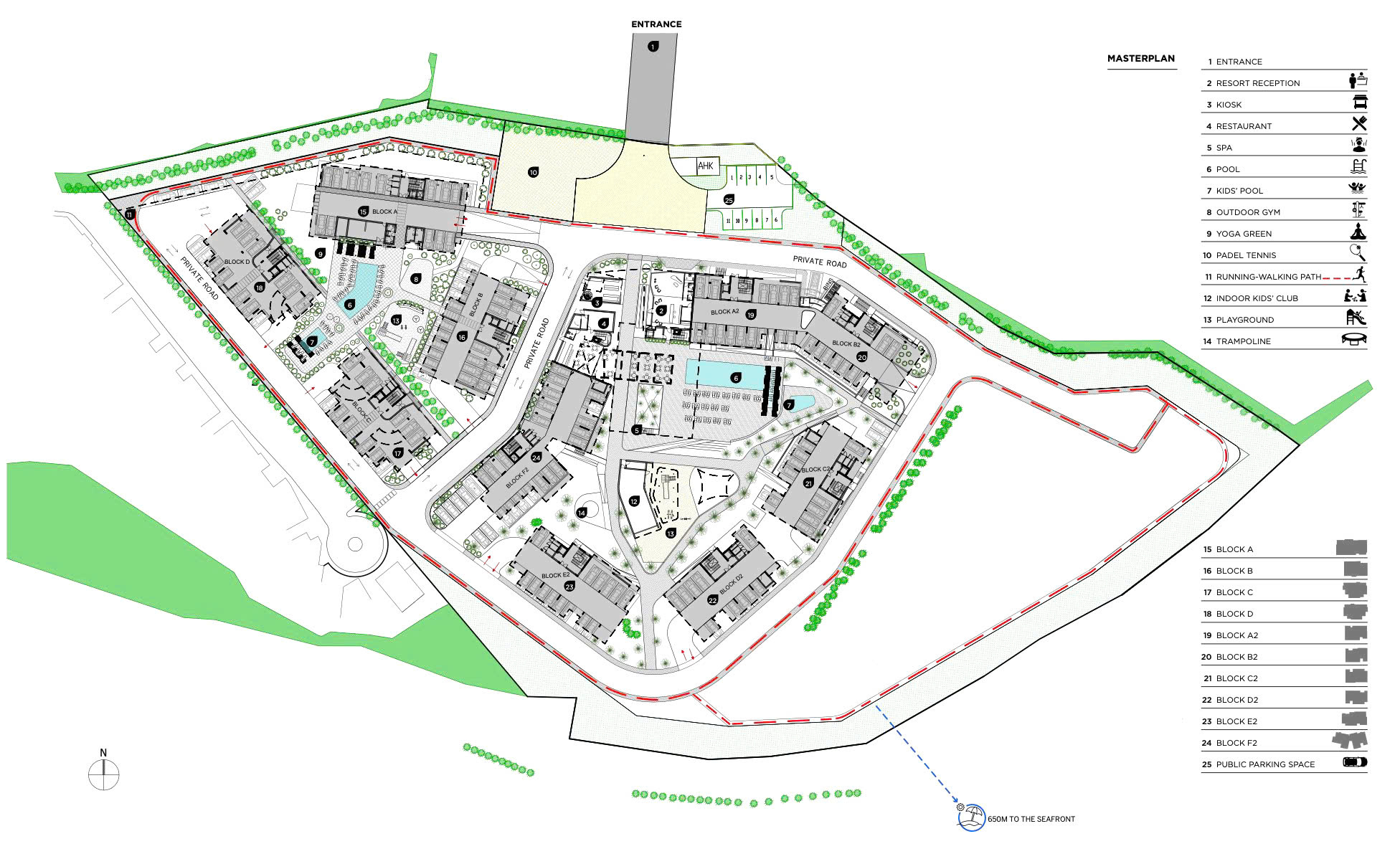
THIẾT KẾ & QUY HOẠCH DỰ ÁN
Tổng thể thiết kế
- 10 tòa nhà kiến trúc nổi bật.
- Không gian mở, tối ưu ánh sáng tự nhiên.
- Vật liệu tinh giản, màu sắc trung tính, bền vững theo thời gian.
Phát triển theo giai đoạn:
Phase 1A
- 4 tòa nhà căn hộ.
- Hồ bơi resort + hồ bơi trẻ em.
- Vườn cảnh quan chung.
Phase 1B
- 6 tòa nhà tiếp theo.
- Sảnh lobby phong cách khách sạn.
- Hồ bơi thứ hai.
- Khu tiện ích thương mại & cộng đồng.
TIỆN ÍCH NỘI KHU - PHONG CÁCH RESORT
Wellness & chăm sóc sức khoẻ
- Phòng gym hiện đại.
- Spa – sauna – jacuzzi.
- Khu yoga & thiền trong nhà.

Khu ngoài trời & giải trí
- Hồ bơi lớn phong cách resort.
- Sân padel tiêu chuẩn.
- Fitness ngoài trời.
- Khu vui chơi trẻ em.

Kết nối cộng đồng
- Kids club trong & ngoài trời
- Lounge sinh hoạt chung
- Chương trình sự kiện nội khu định kỳ

Ẩm thực & tiện ích sống
- Nhà hàng / café nội khu
- Mini market – boutique tiện lợi

SẢN PHẨM CĂN HỘ TIÊU BIỂU (D102)
- Căn hộ 2 phòng ngủ – 2 phòng tắm
- Diện tích trong nhà: 112 m²
- Ban công: 20 m² + 4 m²
- Thiết kế mở – tối ưu ánh sáng & view
- Phù hợp an cư hoặc đầu tư PR Síp

Về Paphos, Cộng Hòa Síp
Quốc gia: Cộng hoà Síp (Cyprus – EU)
Thành phố: Paphos
- Paphos là thành phố được UNESCO công nhận là Di sản Thế giới
- Sở hữu các di tích cổ hàng nghìn năm: nhà hát cổ, khảm mosaic, pháo đài, lăng mộ ngầm
- Kết hợp hoàn hảo giữa giá trị lịch sử – biển xanh – nhịp sống hiện đại
Đây là khu vực được người châu Âu lựa chọn nhiều để sinh sống lâu dài, nghỉ hưu và đầu tư bất động sản.
HẠ TẦNG & KẾT NỐI GIAO THÔNG
- Kết nối trực tiếp với trung tâm Paphos
- Dễ dàng di chuyển ra biển, khu du lịch, khu thương mại
- Thuận tiện cho:
SẢN PHẨM CĂN HỘ TIÊU BIỂU (D102)
- Căn hộ 2 phòng ngủ – 2 phòng tắm
- Diện tích trong nhà: 112 m²
- Ban công: 20 m² + 4 m²
- Thiết kế mở – tối ưu ánh sáng & view
- Phù hợp an cư hoặc đầu tư PR Síp
Trong hai tháng 12/2024 và 1/2025, HALI Global đã hỗ trợ các khách hàng tham gia Chương trình Đầu tư Bất động sản lấy Thường trú nhân Cộng hòa Síp với mức đầu tư từ 300.000 Euro + VAT. Chị Trần, sau 3 năm chờ visa Úc, đã đầu tư vào dự án Síp và chọn căn hộ tại Pafilia Plaza. Chị Nguyễn, chuyên gia bất động sản, đầu tư vào dự án Konia Green và giúp con trai có cơ hội trở thành Thường trú nhân nhờ chính sách linh hoạt của Síp. HALI Global cung cấp dịch vụ tư vấn, hỗ trợ thủ tục pháp lý, giúp khách hàng đạt được giấc mơ Công Dân Toàn Cầu tại Síp.
Gia đình chị Quỳnh nhận thư bảo lãnh visa 888A từ Queensland sau hành trình 188A nhiều năm. Case study thực tế cùng chiến lược từ HALI Global.
Gia đình chị Nguyệt chính thức được cấp visa thường trú 888A định cư Úc. Hành trình thành công cùng HALI Global với chiến lược bài bản và đồng hành xuyên suốt.
HALI Global ghi nhận 4 cột mốc quan trọng: quốc tịch Úc, visa 888B, visa 888A và AIP New Zealand. Thành quả từ chiến lược đầu tư định cư bài bản và cá nhân hóa.
Chúc mừng khách hàng nhận thư chấp thuận quốc tịch Úc chỉ sau 24 giờ hoàn tất bài thi. Tìm hiểu điều kiện, quy trình và lộ trình nhập quốc tịch Úc mới nhất.
Gia đình khách hàng HALI Global nhận PR Approval Cộng hòa Síp sau hơn 5 tháng xét duyệt khi đầu tư bất động sản tại dự án Konia Green, Paphos.
Chị Minh chính thức nhận Approval in Principle chương trình Active Investor Plus New Zealand với mức đầu tư 5 triệu NZD. Tìm hiểu hành trình hồ sơ và cơ hội đầu tư định cư tại New Zealand.
Gia đình chị Thanh chính thức được cấp visa Active Investor Plus New Zealand sau khi đầu tư 5 triệu NZD theo danh mục Growth. Tìm hiểu hành trình hồ sơ và cơ hội đầu tư định cư tại New Zealand.
Bạn Quân chính thức nhận Thư chấp thuận Quốc tịch Úc sau 7 tháng. Tìm hiểu điều kiện xin quốc tịch Úc và lộ trình pháp lý cùng HALI Global.
Gia đình chị Trần chính thức nhận PR Cộng hòa Síp sau 8 tháng xét duyệt. Tìm hiểu lộ trình đầu tư định cư Síp minh bạch cùng HALI Global.
Bé Thanh được Chính phủ Úc cấp Evidence of Australian Citizenship năm 2026. Trường hợp trẻ em có cha là PR Úc và hồ sơ phức tạp đang kháng cáo ART.
Gia đình chị Phương chính thức nhận thư bảo lãnh visa thường trú 888A từ Chính phủ New South Wales chỉ sau 10 ngày. HALI Global đồng hành xây dựng lộ trình định cư Úc bền vững từ visa 188A.
Chúc mừng khách hàng HALI Global nhận Thư chấp thuận Quốc tịch Úc 2026 chỉ sau 3 tháng. Phân tích điều kiện và lộ trình xin quốc tịch Úc.
Gia đình anh Nhật chính thức được Bộ Nội Vụ Úc cấp visa tạm trú 188A diện kinh doanh đổi mới sau thời gian dài chờ xét duyệt. Hồ sơ được tư vấn và đồng hành bởi HALI Global.
HALI Global chúc mừng khách hàng nhận Thư chấp thuận Quốc tịch Úc chỉ sau 4 tháng. Lộ trình từ visa 888 đến quốc tịch Úc được cố vấn trực tiếp bởi Long Phan (MARN 1677976).
Gia đình chị Hương nhận thư bảo lãnh visa thường trú Úc 888A từ Chính phủ Queensland chỉ sau 20 ngày nộp hồ sơ – món quà Giáng Sinh ý nghĩa cho hành trình an cư dài hạn.
Hành trình đồng hành cùng Cố vấn Di trú Úc Long Phan giúp gia đình chị Thu nhận visa thường trú Úc 888B trước Giáng sinh với tốc độ xét duyệt ấn tượng, nhanh hiếm có.
HALI Global chúc mừng gia đình chị Thi chính thức ký hợp đồng chương trình Active Investor Plus (AIP) New Zealand – giải pháp đầu tư & an cư linh hoạt dành cho doanh nhân Việt Nam.
Doanh nhân gốc Ấn được NSW bảo lãnh visa 888A trong chưa đầy 24 giờ. HALI Global và Cố vấn Long Phan đồng hành chiến lược định cư Úc hiệu quả.
Hai gia đình chị Hương và anh Sơn được NSW bảo lãnh visa 888A cùng ngày 27/11/2025. HALI Global và Cố vấn Long Phan đồng hành tối ưu hồ sơ định cư Úc.
Gia đình chị Hòa được NSW chấp thuận bảo lãnh visa 888B chỉ trong 20 giờ. HALI Global và Cố vấn Di trú Long Phan hỗ trợ chiến lược hồ sơ hiệu quả.
Chị Thanh được cấp Work Visa 12 tháng sau khi nhận AIP New Zealand 5 triệu NZD. HALI Global đồng hành chiến lược định cư Active Investor Plus Visa.
HALI Global chúc mừng gia đình chị Lành nhận visa thường trú Úc 888A chỉ sau 6 tháng xét duyệt. Đây là một trong những hồ sơ định cư Úc phức tạp nhất liên quan đến visa 188A, mẹ đơn thân, Australian Child Order và yêu cầu PIC4015(c) – PIC4017(c). Hành trình nhiều năm đã khép lại với kết quả trọn vẹn nhờ sự kiên trì của gia đình và sự đồng hành chuyên nghiệp từ cố vấn di trú Úc Long Phan.
HALI Global chúc mừng gia đình anh Tuấn được Bộ Nội Vụ Úc cấp Visa Hồi Hương (Resident Return Visa 155) chỉ sau 6 ngày. Được tư vấn trực tiếp bởi Cố vấn Di trú Úc Long Phan (MARN 1677976), chuyên gia định cư Úc diện đầu tư.
Gia đình chị Mai ký hợp đồng chương trình Active Investor Plus (AIP) cùng HALI Global – bước ngoặt an cư tại New Zealand.
HALI Global trân trọng cảm ơn gia đình chị Hòa đã tin tưởng lựa chọn Cố vấn Di trú Úc Long Phan – đối tác đồng hành trong hành trình xin visa 888B diện Nhà đầu tư. Với kinh nghiệm và sự tận tâm, HALI Global cam kết mang đến giải pháp định cư Úc an toàn, hiệu quả và bền vững.
Chúc mừng chị Thanh cùng gia đình đã nhận được thư Approval in Principle (chấp thuận ban đầu) cho hồ sơ Visa Active Investor Plus (AIP) trị giá 5 triệu NZD chỉ sau 2 tháng. HALI Global đồng hành cùng Cố vấn Di trú Úc & New Zealand – Ông Long Phan, mang đến lộ trình an cư linh hoạt và bền vững tại New Zealand.
HALI Global cảm ơn gia đình anh Nguyên đã tin tưởng lựa chọn dịch vụ Visa 132A Review cùng Cố vấn Di trú Úc Long Phan. Visa 132A là diện visa đặc biệt, cho phép lên thẳng thường trú nhân Úc.
Tin vui: Gia đình cô Thu đã nhận bảo lãnh visa thường trú 888B từ tiểu bang NSW chỉ sau chưa đầy một tuần. Thành công đến từ sự chuẩn bị chuyên nghiệp của Cố vấn Di Trú Long Phan cùng kinh nghiệm xử lý hồ sơ dày dặn.
Chúc mừng gia đình chị Bích nhận visa 888A Úc – diện Kinh doanh Đổi mới. Hành trình từ 188A đến thường trú nhân thành công cùng cố vấn di trú Long Phan tại HALI Global.
HALI Global chúc mừng gia đình anh Văn chính thức được cấp Visa 888A Úc diện Kinh doanh Đổi mới tại NSW. Hành trình từ visa 188A đến thường trú nhân cùng sự đồng hành tận tâm của cố vấn di trú Long Phan.
HALI Global chúc mừng gia đình chị Nguyệt nhận thư bảo lãnh Visa 888A Úc diện Kinh doanh Đổi mới từ tiểu bang NSW. Hành trình định cư bền vững cùng cố vấn di trú Long Phan từ 2019, hiện thực hóa giấc mơ thường trú Úc.
HALI Global chúc mừng gia đình chị Thanh chính thức nhận Visa Thường trú 888A Úc diện Kinh doanh Đổi mới tại NSW. Hành trình an cư bền vững cùng Cố vấn Di trú Long Phan – hiện thực hóa giấc mơ trở thành Công Dân Toàn Cầu.
Gia đình chị Thu được bảo lãnh visa 888B Úc – diện Nhà đầu tư từ tiểu bang New South Wales chỉ sau chưa đầy 20 giờ, dưới sự tư vấn của Cố vấn Di trú Long Phan. Khám phá bí quyết thành công và hành trình đến thường trú nhân Úc.
Chúc mừng gia đình anh Thanh được Tiểu bang Tây Úc bảo lãnh visa thường trú 888B diện nhà đầu tư chỉ sau 1 ngày. Nhờ chiến lược từ Cố Vấn Di Trú Úc Long Phan, hồ sơ chuẩn xác và đầy đủ ngay từ đầu.
Chúc mừng gia đình chị Kim được tiểu bang Victoria bảo lãnh visa thường trú 888A chỉ sau 9 ngày. Cùng cố vấn di trú Long Phan, chị Kim đã xây dựng thành công doanh nghiệp tại Úc và tiến gần hơn đến giấc mơ an cư toàn cầu.
Visa 888A của gia đình chị Hương được cấp thẳng (Direct Granted) mà không cần yêu cầu bổ sung – nhờ hồ sơ chuẩn chỉnh và chiến lược của Cố Vấn Di Trú Long Phan. Xem chi tiết hành trình định cư Úc thành công.
Câu chuyện 6 năm định cư tại Úc của chị H cùng HALI Global minh chứng cho niềm tin, tận tâm và một hành trình cho tương lai tuyệt vời.
Gia đình chị Hương chính thức được cấp visa 188A Extension từ Bộ Nội Vụ Úc – thêm cơ hội tiếp tục hành trình định cư. Nhờ sự tư vấn chiến lược từ Cố Vấn Di Trú Úc Long Phan, hồ sơ giải trình đã thuyết phục thành công chính phủ Úc.
HALI Global chúc mừng khách hàng nhận visa du lịch New Zealand để khảo sát môi trường sống, chuẩn bị lộ trình đầu tư và an cư dài hạn.
Chuyển hướng định cư từ Úc sang New Zealand: Câu chuyện thành công của gia đình chị Nguyễn với 3 hợp đồng AIP – mở ra cơ hội an cư, quốc tịch New Zealand và sinh sống tại Úc.
Chúc mừng gia đình anh Thanh nhận visa thường trú 888B Úc – diện đầu tư. Long Phan Migration đồng hành cùng nhà đầu tư Việt.
HALI Global chân thành cảm ơn anh Văn đã tin tưởng lựa chọn chương trình Thường trú nhân Malta (MPRP) – giải pháp định cư châu Âu an toàn, bền vững cho cả gia đình 4 thế hệ. Với phương án thuê bất động sản chỉ từ 126,000 EUR, đây là bước đi thông minh giúp tối ưu tài chính và mở ra tương lai vững chắc tại “viên ngọc Địa Trung Hải”. HALI Global tự hào đồng hành cùng anh trên hành trình Đầu tư – An cư toàn cầu.
Chúc mừng gia đình chị Hồng chính thức nhận visa thường trú 888A tại Úc chỉ sau hơn 2 tháng xét duyệt. Hành trình định cư thành công cùng sự đồng hành tận tâm của Cố vấn Di trú Long Phan – thêm một bước tiến vững chắc trên con đường trở thành Công Dân Toàn Cầu Hạnh Phúc!
Cuối tháng 04/2025, hai khách hàng thân thiết của HALI Global – anh Văn và chị Thanh – đã xuất sắc nhận được thư bảo lãnh từ tiểu bang NSW cho visa thường trú 888A chỉ sau chưa đầy 1 tuần xét duyệt. Dưới sự đồng hành tận tâm và chuyên môn sâu sắc của Cố vấn di trú Long Phan, lộ trình định cư của anh chị đã được chuẩn bị bài bản, đúng chiến lược và minh bạch trong từng giai đoạn. Đây là bước tiến quan trọng đưa hai gia đình tiến gần hơn đến giấc mơ trở thành công dân toàn cầu.
Chúng tôi xin chúc mừng gia đình chị Hồng đã nhận được visa thường trú 888A chỉ sau chưa đầy 2 tháng kể từ ngày nộp hồ sơ. Đây là một thành công nổi bật trong hành trình định cư Úc, đánh dấu sự hợp tác chặt chẽ giữa gia đình chị và Cố Vấn Di Trú Úc Long Phan. Với sự tư vấn tận tâm, gia đình chị đã hoàn tất các bước đầu tư và kinh doanh tại Úc, từ đó nhanh chóng đáp ứng đủ điều kiện để được cấp visa thường trú. Thành công này không chỉ là kết quả của quá trình làm việc nghiêm túc mà còn nhờ vào sự ưu tiên xét duyệt của Bộ Nội Vụ Úc đối với dòng visa Kinh doanh đổi mới và Đầu tư. Chúng tôi tự hào đồng hành cùng gia đình chị Hồng trên con đường trở thành công dân Úc.
Chúc mừng chị N đã đầu tư thành công vào BĐS tại Cộng hòa Síp và nhận Thẻ Thường Trú Nhân cho cả gia đình! Với tầm nhìn dài hạn và quyết định nhanh chóng, chị N đã lựa chọn dự án Konia Green, Paphos, mở ra cánh cửa trở thành Công Dân Toàn Cầu. Dưới sự tư vấn của Cố vấn Di trú Long Phan, chị không chỉ đảm bảo một khoản đầu tư an toàn mà còn mang đến tương lai ổn định cho gia đình tại thiên đường Địa Trung Hải.
Sau 4 năm chờ đợi, khoảnh khắc nhận Visa 188A đã mở ra cánh cửa mới cho gia đình anh Thanh tại Úc. Đặc biệt, chỉ 2 ngày sau, anh đã quyết định đồng hành cùng Cố vấn Di trú Úc Long Phan trên chặng đường chinh phục Visa Thường trú 888A. Đây không chỉ là dấu mốc cá nhân mà còn là tín hiệu tích cực cho cộng đồng doanh nhân đầu tư.
Từ hành trình định cư diện doanh nhân đến cột mốc quan trọng với Visa Hôn nhân (820/801), gia đình chị L tiếp tục tin tưởng đồng hành cùng Cố vấn Di trú Úc Long Phan. Đây không chỉ là bước ngoặt lớn mà còn là minh chứng cho sự kết nối bền chặt giữa khách hàng và người cố vấn di trú tận tâm.
Sau hành trình định cư Úc cùng Cố vấn Di trú Úc Long Phan từ năm 2018, gia đình chị Hương đã đạt được cột mốc quan trọng khi nhận thư bảo lãnh chỉ sau 10 ngày nộp hồ sơ. Việc gia hạn visa 188A không chỉ đảm bảo quyền lợi di trú mà còn tạo bước đệm vững chắc cho lộ trình visa thường trú 888A trong tương lai.
Hành trình từ visa 188A đến 888A của anh Phi đã chính thức cập bến thành công dưới sự đồng hành tận tâm của Cố vấn Di trú Úc Long Phan. Dù trải qua nhiều thử thách, đặc biệt là giai đoạn khó khăn do Covid-19, với sự chuẩn bị kỹ lưỡng và chiến lược phù hợp, hồ sơ 888A đã được xét duyệt nhanh chóng, giúp gia đình anh Phi trở thành Thường trú nhân Úc.
Sau hơn 3 năm nỗ lực đầu tư và kinh doanh tại Úc, vào ngày 19/02/2025, gia đình chị Hồng chính thức nhận được thư bảo lãnh từ Chính phủ tiểu bang New South Wales cho visa thường trú 888A – Diện Kinh Doanh Đổi Mới. Nhờ sự tư vấn chuyên nghiệp của Cố Vấn Di Trú Long Phan, chị Hồng đã xây dựng thành công doanh nghiệp tại Sydney và hoàn tất hồ sơ đúng yêu cầu. Xin chúc mừng chị Hồng và gia đình trên hành trình định cư bền vững tại Úc!
Với sự đồng hành tận tâm của Cố Vấn Di Trú Long Phan, chị Hồng đã từng bước xây dựng thành công mô hình nhà hàng take-away tại Queensland, đáp ứng đúng các cam kết đầu tư và yêu cầu kinh doanh của tiểu bang. Chỉ sau 4 tuần nộp hồ sơ, chị đã nhận được thư chấp thuận bảo lãnh visa 888A, đánh dấu cột mốc quan trọng trên hành trình định cư. Xin chúc mừng chị Hồng và gia đình trên con đường phát triển bền vững tại Úc!
Chỉ sau ba tuần kể từ khi nộp hồ sơ ngày 23/01/2025, gia đình anh Thanh đã nhận được thư chấp thuận bảo lãnh visa 888B từ chính phủ tiểu bang Victoria vào ngày 13/02/2025. Thành công này có được nhờ sự hỗ trợ tận tâm và kinh nghiệm dày dặn của Cố Vấn Di Trú Long Phan trong lĩnh vực định cư Úc diện đầu tư. Xin chúc mừng gia đình anh Thanh trên hành trình mới tại Úc!
Chúc mừng gia đình Anh Đặng đã ký kết thành công hợp đồng National Innovation Visa (NIV 858) – diện thị thực dành cho cá nhân có thành tựu vượt trội trong lĩnh vực năng lượng tái tạo, nhóm ngành ưu tiên cấp 1 của Úc. Liên hệ Cố vấn di trú Long Phan – MARN 1677976 để được hỗ trợ chi tiết!
Chị Nguyễn, nhà đầu tư bất động sản tại Việt Nam, đã quyết định đầu tư vào dự án Konia Green tại Cộng hòa Síp, nhờ sự tư vấn của Cố Vấn Di Trú Long Phan. Với mức giá hợp lý và tiềm năng sinh lời cao, chị không chỉ sở hữu nhà tại Châu Âu mà còn có cơ hội nhận thẻ Thường trú nhân cho cả gia đình, bao gồm con trai 24 tuổi đang du học Úc. Quyết định này thể hiện tầm nhìn chiến lược của chị trong việc đầu tư bất động sản sinh lời và hướng tới tương lai bền vững.
Gia đình anh Quang vừa nhận tin vui từ Bộ Nội Vụ Úc: visa 132A – diện Lịch sử Kinh doanh Thành công đã chính thức hoàn thành mọi cam kết. Với sự nỗ lực không ngừng trong vận hành doanh nghiệp tại Sydney và đóng góp tích cực cho kinh tế địa phương, gia đình anh đã ghi dấu hành trình kiên trì đầy ấn tượng. Cố vấn Di trú Úc Long Phan hân hạnh đồng hành và xin chúc gia đình anh tiếp tục gặt hái nhiều thành công tại Úc!
Visa Đổi Mới Quốc Gia (NIV) Subclass 858 mở ra cơ hội định cư vĩnh viễn tại Úc cho các cá nhân xuất sắc và gia đình, thay thế visa Global Talent. Visa này không giới hạn về độ tuổi, trình độ tiếng Anh, hay nghề nghiệp, với 4.000 suất cho năm tài chính 2024-2025. Đây là cơ hội lý tưởng cho các doanh nhân, nhà nghiên cứu và chuyên gia sáng tạo có thành tích xuất sắc. Để nhận tư vấn chi tiết, liên hệ Cố Vấn Di Trú Long Phan - MARN 1677976.
Chúc mừng anh Ngọc đã hoàn thành đầy đủ cam kết visa Thường trú 132A – Diện Lịch sử Kinh doanh! Đây là kết quả của sự nỗ lực và chiến lược kinh doanh hiệu quả. Tôi rất vinh dự được đồng hành cùng anh trong hành trình này và luôn cam kết hỗ trợ khách hàng đạt được mục tiêu định cư tại Úc.
Cố vấn Di trú Úc Long Phan là chuyên gia uy tín với nhiều năm kinh nghiệm hỗ trợ khách hàng xin visa Úc. Ông nổi bật với khả năng tư vấn chuyên nghiệp và am hiểu sâu sắc về các chính sách di trú, giúp nhiều gia đình và doanh nghiệp thành công trong việc định cư tại Úc.
Cố vấn Di trú Úc Long Phan là chuyên gia giàu kinh nghiệm, với kiến thức sâu rộng về các quy định di trú Úc. Ông đã hỗ trợ nhiều gia đình và doanh nghiệp hoàn thành thủ tục visa thành công, cung cấp tư vấn chi tiết và giải pháp tối ưu để khách hàng đạt được mục tiêu định cư và phát triển tại Úc.
Chúc mừng gia đình chị Bích và anh Phi nhận bảo lãnh visa 888A từ Tiểu bang Nam Úc vào ngày 18/12/2024! Sau khi thay đổi mô hình kinh doanh, với sự hỗ trợ của Cố vấn Di trú Úc Long Phan, hồ sơ của gia đình anh chị đã được chấp thuận mà không yêu cầu bổ sung thông tin. Chúc anh chị và gia đình an cư, hạnh phúc tại Úc!
Chúc mừng gia đình chị A nhận visa Thường trú 888A vào ngày 24/12/2024! Sau quá trình nỗ lực và sự hỗ trợ tận tình từ Cố vấn Di trú Úc Long Phan, gia đình chị đã thành công với mô hình kinh doanh nhà hàng ẩm thực Việt Nam. Visa được cấp chỉ sau 2 tuần bảo lãnh từ NSW và 1 tháng từ Bộ Nội Vụ.
Cố vấn Long Phan hân hạnh đồng hành cùng anh Học trong hành trình định cư Úc. Xin chúc gia đình anh tiếp tục phát triển vững mạnh và gặt hái nhiều thành công mới trên chặng đường sắp tới!
Trân trọng chúc mừng gia đình chị Lệ đã chính thức được Bộ Nội vụ Úc công nhận hoàn thành cam kết visa thường trú 132A – diện Lịch sử Kinh doanh Thành công.
Cố vấn Long Phan tự hào đồng hành cùng gia đình trên chặng đường hiện thực hóa giấc mơ định cư Úc. Chúc gia đình chị tiếp tục phát triển thịnh vượng và gặt hái nhiều thành công rực rỡ trong hành trình mới!
Cố vấn Di trú Úc Long Phan đã đồng hành cùng anh P. và gia đình từ khi anh được cấp visa tạm trú 188A – diện Kinh Doanh Đổi Mới vào tháng 03/2018.
Sau khi nhận được visa thường trú 132A vào Tháng 08/2022, anh Lê cùng gia đình đã nhanh chóng di chuyển đến tiểu bang Nam Úc để ổn định cuộc sống và tìm kiếm mô hình doanh nghiệp phù hợp.
Sau khi nhận được visa thường trú 132A vào tháng 05/2021, Chị Hồng đã đối mặt với những thách thức trong việc vận hành doanh nghiệp một cách hiệu quả, đặc biệt là trong bối cảnh nền kinh tế Úc đang phục hồi từ đại dịch Covid-19.
Khép lại một hành trình dài 4 năm với niềm vui vỡ òa, ngày 08/12/2023 cả gia đình khách hàng anh Nam đã được cấp visa thường trú 888A - Diện Kinh Doanh Đổi Mới.
Cuộc hành trình trên đất nước Úc của gia đình chị T. cùng Cố vấn Di trú Úc Long Phan bắt đầu từ năm 2018, 1 năm sau khi gia đình chị được cấp visa Tạm trú 188A.
Ngày 30/9/2024 vừa qua, gia đình khách hàng anh Học đã được tiểu bang New South Wales bảo lãnh cho hồ sơ xin visa thường trú 888A - Diện Kinh Doanh Đổi Mới.
Visa 485 sau tốt nghiệp là lựa chọn phổ biến của các du học sinh Úc bởi vì đây là cơ hội giúp các bạn có thể ở lại làm việc hợp pháp tại Úc, đồng thời tăng khả năng xin được thường trú nhân trong tương lai.
Ngày 9/9/2024 vừa qua, chúng tôi và gia đình chị Ngọc rất vui mừng khi Bộ Nội Vụ Úc đã cấp visa tạm trú 188A - Diện Kinh Doanh đổi mới cho gia đình chị.
Hành trình của của Cố Vấn Di Trú Úc Long Phan cùng anh Công bắt đầu từ những bước đầu tiên của visa 188A vào năm 2020. Khi đó, anh Công chọn tiểu bang Victoria là mục tiêu để nộp hồ sơ.
Chúng tôi cùng gia đình anh Hồ vô cùng vui mừng khi nhận được thông báo từ Bộ Nội Vụ Úc rằng visa thường trú 888A của gia đình anh Hồ đã được cấp thành công.
Cố Vấn Di Trú Úc Long Phan đã có vinh dự đồng hành cùng anh Nguyên và gia đình nhỏ của anh từ những bước đầu tiên trên chặng đường visa Tạm trú 188A.
Như những thông tin trước đây chúng tôi đã đưa tin, sau 1/7/2021 Bộ Nội vụ Úc đã có những thay đổi về điều kiện cho các dòng visa diện Kinh Doanh đổi mới và Nhà Đầu tư (188/888) - Đánh dấu một trang mới trong chương trình Định cư Úc với những tiêu chí khắt khe hơn cho diện visa 188A/888A
Chị Ngọc trước đây làm visa 188A với một đơn vị khác. Sau khi có được visa tạm trú 188A và sang Úc, chị Ngọc đã tin tưởng và tìm đến Cố Vấn Di Trú Úc Long Phan để được tư vấn lộ trình có được Thường trú nhân 888A.
Gia đình chị Khuê đã nộp hồ sơ vào Bộ Nội vụ Úc giai đoạn tháng 06/2021. Tuy nhiên, như quý vị đã biết thì vào giai đoạn tháng 10/2022, 810 chỉ tiêu được cấp cho visa 188 trong năm tài chính này đã được sử dụng hết. Và thời điểm đó cho đến hiện tại thì Bộ Nội Vụ Úc đã ngưng tiếp nhận hồ sơ mới cho dòng visa đầu tư 188 và thời gian xét duyệt cho các hồ sơ 188 đã nộp trước đó cũng bị kéo dài hơn dự kiến.
Ngày 12/8/2024, chúng tôi và gia đình chị Kim vui mừng rất vui mừng khi Bộ Nội Vụ Úc đã cấp visa tạm trú 188A - Diện Kinh Doanh đổi mới cho gia đình chị.
Gia đình anh Trí được cấp visa tạm trú 188A vào tháng 2/2019 và đã nhanh chóng bắt đầu sang Úc để thực hiện việc kinh doanh tại Úc theo những cam kết của visa tạm trú 188A với Chính phủ Tiểu bang và Bộ Nội Vụ Úc.
Cố Vấn Di Trú Úc Long Phan rất vui mừng khi đã hỗ trợ thành công cho gia đình anh Đức lấy được visa 188A – Diện Kinh Doanh Đổi Mới.
Trân trọng chúc mừng gia đình chị Lệ đã chính thức được Bộ Nội vụ Úc công nhận hoàn thành cam kết visa thường trú 132A – diện Lịch sử Kinh doanh Thành công.
Cố vấn Long Phan tự hào đồng hành cùng gia đình trên chặng đường hiện thực hóa giấc mơ định cư Úc. Chúc gia đình chị tiếp tục phát triển thịnh vượng và gặt hái nhiều thành công rực rỡ trong hành trình mới!
31/03/2025
VIETJET MỞ ĐƯỜNG BAY THẲNG ĐẦU TIÊN KẾT NỐI VIỆT NAM – NEW ZEALAND
Vietjet mở đường bay thẳng TP.HCM - Auckland, kết nối Việt Nam - New Zealand! Cùng với đó, HALI Global tổ chức hội thảo đầu tư & định cư New Zealand vào ngày 15/03/2025 tại TP.HCM, giúp nhà đầu tư nắm bắt chính sách mới, mở rộng cơ hội kinh doanh và định cư lâu dài. Đăng ký ngay để không bỏ lỡ cơ hội!
16/05/2025
QUY TRÌNH VÀ QUYỀN LỢI VISA ACTIVE INVESTOR PLUS (AIP) – NEW ZEALAND
Visa Active Investor Plus (AIP) New Zealand – Cơ hội định cư cho cả gia đình với mức đầu tư từ 5 triệu NZD, không yêu cầu tiếng Anh, thời gian cư trú linh hoạt và lộ trình rõ ràng đến thường trú và quốc tịch.
12/06/2025
NAM ÚC CHÍNH THỨC MỞ CỔNG NHẬN ĐĂNG KÝ CHO VISA ĐỔI MỚI QUỐC GIA (NATIONAL INNOVATION VISA – SUBCLASS 858)
Chương trình Visa Đổi mới Quốc gia (NIV – subclass 858) đã bắt đầu nhận hồ sơ từ tháng 6/2025, mang đến cơ hội định cư thường trú tại Úc cho những cá nhân có thành tích vượt trội và năng lực đóng góp thực chất cho sự phát triển của tiểu bang Nam Úc. Đây là thời điểm vàng dành cho nhà nghiên cứu, doanh nhân công nghệ, nhà đầu tư đổi mới và chuyên gia sáng tạo Việt Nam.
12/06/2025
CHƯƠNG TRÌNH NATIONAL INNOVATION VISA (SUBCLASS 858) BANG NEW SOUTH WALES SẼ MỞ CỬA TỪ THÁNG 7/2025
Đây là cơ hội định cư thường trú tại Úc dành cho những cá nhân có thành tích toàn cầu vượt trội và cam kết đóng góp thiết thực cho bang NSW trong các lĩnh vực như công nghệ, y tế, giáo dục, nghiên cứu và đầu tư đổi mới.
25/07/2025
MALTA CẬP NHẬT CHÍNH SÁCH MPRP – CẤP THẺ NHANH HƠN, CHO THUÊ LINH HOẠT, GIẢM CHI PHÍ CHO GIA ĐÌNH
Malta chính thức cải cách chương trình MPRP từ tháng 7/2025 với 3 điểm mới: cấp thẻ nhanh, linh hoạt cho thuê và giảm chi phí cho cả gia đình. Cơ hội định cư châu Âu an toàn, hợp pháp với ngân sách chỉ từ 100.000 EUR.
29/10/2025
NHỮNG ĐIỀU QUAN TRỌNG QUÝ VỊ CẦN BIẾT VỀ CHƯƠNG TRÌNH BUSINESS INVESTOR VISA (BIV) CỦA NEW ZEALAND
Tìm hiểu chi tiết chương trình Business Investor Visa (BIV) – visa định cư diện doanh nhân mới nhất 2025 tại New Zealand. Cơ hội đầu tư thật, định cư thật cùng HALI Global – cố vấn di trú Úc & New Zealand được cấp phép.
Nhận tư vấn từ HALI Global
Nếu có bất kỳ thắc mắc nào về chương trình định cư, vui lòng gửi thông tin cho chúng tôi để được tư vấn